Добро пожаловать на http://vipplan.ru

Випплан Тулун - это тысячи проектов домов в нашем каталоге!

Вы всегда сможете найти для себя проект дома вашей мечты! Даже если этого не случилось, мы готовы в любую минуту предложить проект индивидуального дома.

Забыли пароль?
Вы еще не регистрировались?

Перейдите по ссылке ниже на страницу регистрации.

Регистрация...

Внимание!!!

В проектную документацию могут быть внесены изменения любой сложности, в соответствии в Вашими пожеланиями!

Полезные статьи

Приготовление раствора для наливного пола

Если вы хотите чтобы пол получился ровным, наливные полы – лучший вариант. Особое внимание следует уделить приготовлению раствора. А все потому, что после нанесения на цементную стяжку или бетонное основание внести коррективы или изменить что-либо уже не получится. Поэтому к замешиванию раствора стоит подходить очень внимательно....

Где копать колодец?

Водоснабжение за городом - Тулун всегда было проблематичным. При отсутствии центрального водоснабжения остается только один выход – выкопать колодец. Водоносный пласт есть не везде. Как же определить, где копать колодец?...

Проекты домов и коттеджей > Каталог проектов домов > Проект одноэтажного дома с мансардой и гаражом Vg3530

Проект одноэтажного дома с мансардой и гаражом Vg3530

Проект одноэтажного дома с мансардой и гаражом
Зарегистрируйтесь

Проект № Vg3530


Техническое описание
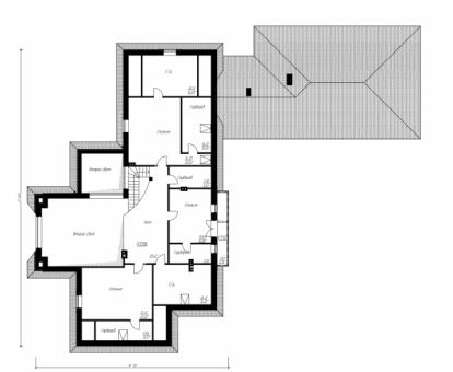
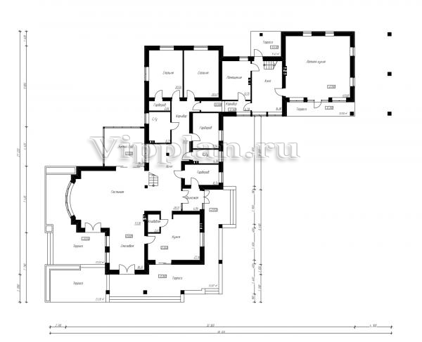
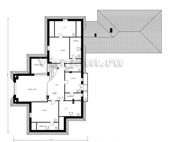
Общая площадь: 476.9 м2
Жилая площадь: 154.35 м2
Высота здания: 11.14 м
Размеры дома: 27.22м×38.12м
Цокольный этаж: нет
Гараж: нет
Мансарда: есть

Kонструкция
Фундамент: Ленточный
Перекрытия: Сборные ж/б плиты

Архитектурный раздел
АР+КР - 108 000 (Со скидкой 20%)

Проект индивидуального одноэтажного жилого дома с мансардой с размерами здания 27,22 x 38,12 м. Наружная отделка здания – фасадная штукатурка. Фундамент – ленточный монолитный ( под несущими стенами). Наружные стены – из забутовочного кирпича, с утеплением минеральной ватой и отделкой фасадной штукатуркой. Внутренние стены - из забутовочного кирпича. Перегородки – из забутовочного кирпича. Пол первого этажа - пол по грунту. Межэтажное перекрытие- сборные ж/б плиты. (по т.з) Крыша многоскатная. Кровля –битумная черепица. Окна — металлопластиковые

Генплан застройки участка / Паспорт проекта 7000 руб / 10000 руб
Инженерный раздел (полный) 238500 руб
Смета на строительство 119250 руб
Теплотехнический расчет материалов стен Бесплатно
Стоимость проекта со незначительнми изменениями 123050 руб
Стоимость проекта со средними изменениями* 158900 руб
Стоимость проекта со значительными изменениями** 168400 руб

План первого этажа



План мансардного этажа



Проект одноэтажного дома с мансардой и гаражом Проект одноэтажного дома с мансардой и гаражом Проект одноэтажного дома с мансардой и гаражом Проект одноэтажного дома с мансардой и гаражом

Модификации проектов

Внесение изменений и привязка к участку строительства

В любой из проектов от компании VIPplan - Тулун по вашему желанию могут быть внесены изменения в материалы стен, материалы наружной отделки дома, а также будет произведена адаптация проекта под конкретный регион строительства (с учетом грунтов региона, геологических особенностей вашего участка и местных климатических условий) - БЕСПЛАТНО !!! (кроме проектов со скидкой и проектов наших партнеров).

Любой из проектов, размещенных на сайте tulun.vipplan.ru мы можем выполнить из требуемых вам строительных материалов: ячеистый бетон (газобетон, пеноблок), керамоблок, кирпич, шлакоблок, бетонный блок, дерево (брус, клееный брус), каркасная технология (деревянный каркас, металлокаркас (ЛСТК)).

Фасад дома и его наружную отделку так же возможно выполнить с применением различных облицовочных материалов: структурной штукатурки, (с утеплителем и без), сайдингом (пластиковый или металлосайдинг), фиброплитами, кирпича.

 
6 Избранные
проекты

Доставка проектов по России: Москва (Московская область), Санкт-Петербург (Ленинградская область), Краснодар, Ростов-на-Дону, Ставрополь, Сочи, Волгоград, Новосибирск, Белгород, Брянск, Воронеж, Саратов, Хабаровск, Астрахань, Нальчик, Владикавказ, Екатеринбург, Тюмень, Самара, Нижний Новгород, Казань, Пермь, Уфа, Челябинск, Красноярск, Ханты-Мансийск, Иркутск, Курган, Оренбург, Омск, Томск, Барнаул, Новокузнецк, Кемерово, Абакан, Чита, Якутск, Южно-Сахалинск, Петропавловск-Камчатский и страны ближнего зарубежья: Белоруссия, Украина, Казахстан